Lösung

M20 CNC-Fräsmaschine + Blechbearbeitungslinie für Vorder- und Rückseite
Diese Produktionslinie kann Bearbeitungsschritte wie das Bohren von Scharnierlöchern, das Nuten und das Profilieren der Türblattrückseite durchführen. Der Gesamtprozess verläuft wie folgt: Materialzufuhr zur Hydraulikplattform – automatische Zuführung zur Bearbeitungsmaschine – Bohren von Scharnierlöchern, Stanzen von Löchern, Einbringen von Richtnuten und Bearbeiten der Glasrückseite – Transport zur Wendemaschine zum Wenden der Tür – Rücktransport zum Türformzentrum – Bearbeitung und Zuschneiden der Türform auf der Vorderseite – Transport des fertigen Produkts zur Auswurfplattform bei gleichzeitiger Materialzufuhr – manuelles Anbringen von Etiketten und Entnahme des Materials.
-

M12-Portalrahmen für die 1-zu-2-Möbelproduktionslinie
Die auf einem Portal montierte 2:1-CNC-Graviermaschine ist ein automatisiertes System mit Portalstruktur, das in der Lage ist, gleichzeitig die Materialhandhabung und das Be- und Entladen von zwei CNC-Werkzeugmaschinen zu übernehmen.
Der gesamte Produktionsablauf gestaltet sich wie folgt: Beladung des Portals – Etikettiermaschine – Etikettierung – Automatische Zuweisung zu den Bearbeitungsmaschinen durch das schrankbasierte intelligente Verteilungssystem – Maschinenvorbereitung – Schneiden – Bearbeitung abgeschlossen und zur Entladeplattform geschoben – Rückholung durch den Roboterarm.
Die Portalkonstruktion zeichnet sich durch hohe Steifigkeit und Stabilität aus. In Kombination mit einem Servosteuerungssystem arbeitet die Anlage reibungslos und mit geringer Ausfallrate und erfüllt somit die Produktionsanforderungen von Unternehmen für einen langfristigen Dauerbetrieb. Dank Servomotorantrieb und Linearführungen bietet sie hohe Betriebsgeschwindigkeit und hohe Positioniergenauigkeit (Wiederholgenauigkeit bis zu ±0,5 mm bis ±1 mm) und reduziert die Standzeit der Werkzeugmaschine deutlich.
--

MD-8AL Portalrahmenzuführung für 1-zu-2-Möbelproduktionslinie + robotergestützte Palettierung
Der Gesamtprozess der Produktionslinie gestaltet sich wie folgt: Portalbeladung --- Etikettiermaschine --- Etikettierung --- Automatische Zuweisung zu den linken und rechten Wartetischen durch das intelligente Verteilsystem --- Maschinenbeladung --- Maschinenmontage --- Schneiden --- Weiterverarbeitung und Transport zur Auswurfplattform --- Palettierung durch Roboterarm
Der gesamte Prozess, von der Rohmaterialverladung bis zur Palettierung des fertigen Produkts, erfordert keine manuelle Intervention, nur eine geringe Anzahl von Mitarbeitern zur Überwachung und Unterstützung, wodurch die Arbeitskosten erheblich gesenkt und das Problem des Arbeitskräftemangels gelöst wird.
Eins-zu-zwei-Bearbeitungszentrum: Ein Portal-Ladesystem bedient zwei CNC-Graviermaschinen gleichzeitig. Während eine Maschine bearbeitet, belädt das Portal bereits die andere, wodurch die Maschinenstillstandszeiten erheblich reduziert werden.
--

Website-Datenbetriebssystem
Das auf der Google API basierende Big-Data-System integriert alle Website-Daten (Einträge, Gewichtung, Ranking, Traffic, Suchanfragen), sodass jede Website über eine eigene Keyword-Datenbank und ein wöchentliches Keyword-Überwachungssystem verfügt.
--

M12 Intelligenter Verbinder zum Durchtrennen von drei Möbelschränken
Der Gesamtprozess gestaltet sich wie folgt: Das Material wird auf die hydraulische Plattform geladen – es wird etikettiert – das intelligente Verteilsystem weist das Material automatisch der Verarbeitungsmaschine zu – die Maschine verarbeitet das Material – es wird zugeschnitten – nach der Verarbeitung wird das Material zur Entladeplattform geschoben, um dort auf die Zuweisung durch das intelligente Verteilsystem zu warten, wodurch eine kontinuierliche und ununterbrochene Verarbeitung des Plattenmaterials erreicht wird.
Die gesamte Produktionslinie ist vollautomatisiert und benötigt nur einen Bediener für die Beladung und die Gesamtüberwachung. Dadurch werden die zwei bis drei Mitarbeiter, die im herkömmlichen Modell für Sortierung und Handhabung erforderlich waren, vollständig ersetzt. Dies spart nicht nur erheblich Lohnkosten, sondern entlastet die Mitarbeiter auch von schwerer, monotoner körperlicher Arbeit und reduziert so Gesundheitsrisiken und Managementaufwand.
--

M20 Ein- bis Vier-Formtürpaneel Smart Connection
Die Produktionslinie ist weniger fehleranfällig und erfordert nur minimale menschliche Eingriffe. Durch die präzise Zuweisung von Bearbeitungsaufgaben durch eine zentrale Steuerung werden einheitliche und standardisierte Bearbeitungsdetails wie Form und Lochpositionen auf beiden Seiten des Türblatts gewährleistet, wodurch die Produktqualität stabilisiert wird.
Der Gesamtprozess gestaltet sich wie folgt: Das Material wird der Hydraulikplattform zugeführt – automatisch zur Rückwärtsbearbeitungsmaschine transportiert – Lasermarkierung – Bohren von Scharnierlöchern, Perforationen, Richtnuten und Bearbeiten der Rückseite der Glastür – Transport zur Wendemaschine – automatischer Transport durch den intelligenten Mingdiao-Wagen zum Türformbearbeitungszentrum – Türformbearbeitung und Zuschneiden – das fertige Produkt wird zur Entladeplattform geschoben und gleichzeitig verladen.
Der gesamte Prozess ist automatisiert und kommt ohne menschliches Eingreifen aus. Dadurch bietet er höhere Präzision und Effizienz und erzielt eine Tagesleistung von 250 bis 500 Quadratmetern. (Die genaue Ausführung hängt von der Komplexität des Türblattdesigns ab.)
--
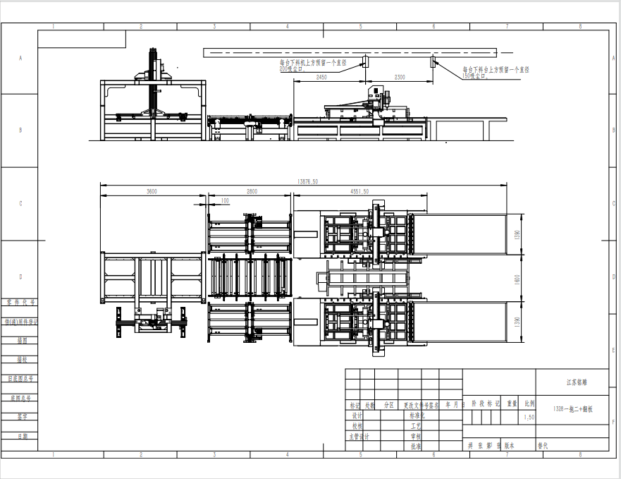
1+1 Flip-Maschine

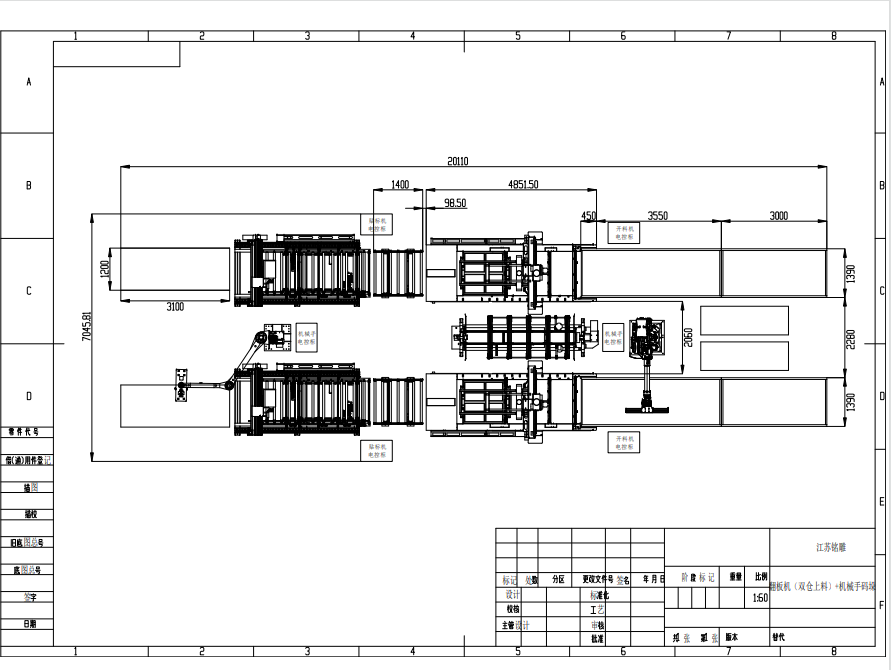
1+2 Portalkranbeladung

1+2 Flip-Maschine
duotouji
Doppelbehälter-Zuführ- und Wendemaschine
1+2
Ein- bis Drei-Mengen-Fütterung

Fütterung von ein bis vier Personen

Eine Nachricht hinterlassen
Scannen Sie den QR-Code zu WeChat/WhatsApp :